Apie projektą:
Šalis: Lietuva
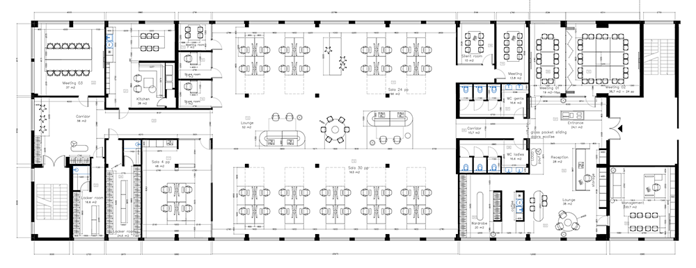
Plotas: 892 m2
VLR biuras Klaipėdoje
Šio biuro interjeras kurtas atsižvelgiant į specifinę įmonės veiklą – tai laivų remonto bendrovė, kurios darbuotojai nuolat juda tarp vidaus ir lauko erdvių: dirbama biure, išeinama prie laivų, tikrinami gamybos procesai ir vėl grįžtama į administracines patalpas. Biuras įsikūręs sename pastate, todėl projektavimo užduotis apėmė ne tik funkcinius, bet ir kontekstinius sprendinius.
Pagrindinis siekis buvo transformuoti esamas erdves į atviro tipo biurą, kartu sudarant galimybes dirbti mažesnėmis grupėmis, nes darbo procesai vyksta komandinio darbo principu. Darbo vietos vizualiai skaidomos į dvi zonas, pasitelkiant bendro naudojimo sėdimuosius baldus ir spintas, kurios veikia kaip funkcinės pertvaros, tačiau neuždaro erdvės.
Atsižvelgiant į intensyvų judėjimą dienos metu ir dažną grįžimą iš lauko bet kokiomis oro sąlygomis, interjero medžiagos parinktos itin patvarios, lengvai prižiūrimos ir neteplios. Tuo pačiu buvo siekiama išlaikyti estetišką, subalansuotą ir vizualiai ramią aplinką.
Centrinė darbo erdvės ašis – apskritas stalas, skirtas trumpam prisėsti ar dirbti stovint, grįžus iš lauko. Ši zona tampa natūraliu susibūrimo tašku. Į darbo erdvę taip pat integruota vidinė virtuvė bei persirengimo patalpos su dušais, pritaikytos darbuotojams, grįžtantiems su lauko darbo apranga.
Atskira erdvė skirta reprezentacijai ir svečių priėmimui. Ji nuo bendros darbo zonos atskirta stiklinėmis stumdomomis durimis, leidžiančiomis išlaikyti vizualinį ryšį, tačiau užtikrinti reikiamą privatumą. Atsižvelgiant į industrinę aplinką ir stiprų vizualinį kontekstą už langų, interjere siekta sukurti jaukią, šiltą ir neapkrautą atmosferą – tokią, kuri papildytų, o ne konkuruotų su aplinka.
Reprezentacinėje erdvėje paslėpta virtuvėlė ir drabužinė, o svečiams matoma tik švari, aiški erdvė su pasitikimo baro tipo stalu, pritaikytu neformaliems pokalbiams ir pasitarimams.
Papildomai projekte numatytas daugiafunkcis susitikimų kambarys, galintis talpinti iki 50 žmonių. Erdvė suplanuota taip, kad prireikus ji galėtų būti lanksčiai transformuojama į du atskirus kabinetus, užtikrinant skirtingų darbo scenarijų įgyvendinimą. Šis sprendimas leidžia efektyviai pritaikyti patalpą tiek didesniems susirinkimams, pristatymams ar mokymams, tiek kasdieniam komandiniam darbui mažesnėse grupėse, išlaikant erdvės funkcionalumą ir akustinį komfortą.
EN
This office interior was designed in response to the specific nature of a ship repair company, whose employees constantly move between indoor and outdoor environments. The office is located in an old building, therefore the design addresses both functional and contextual challenges.
The main goal was to create an open-plan workspace while allowing work in smaller groups, as the workflow is team-based. Workstations are visually divided using shared seating furniture and storage elements that act as partitions without fully enclosing the space.
Due to intensive daily movement and frequent returns from outdoor areas in all weather conditions, materials were selected for durability, easy maintenance, and resistance to dirt, while maintaining an aesthetic, calm, and balanced environment.
The central element of the workspace is a circular table designed for short-term use, serving as a natural gathering point. The office also integrates an internal kitchen, as well as changing rooms with showers adapted for employees returning in outdoor workwear.
A separate area is dedicated to representation and guest reception, separated by sliding glass doors that maintain visual connection while ensuring privacy. In response to the industrial surroundings, the interior was designed to be warm and uncluttered, complementing the strong exterior context.
The representative area conceals a kitchenette and wardrobe, leaving guests with a clean space centred around a bar-height table for informal meetings. Additionally, a multifunctional meeting room accommodates up to 50 people and can be flexibly divided into two separate offices, allowing adaptation to various work scenarios while maintaining functionality and acoustic comfort.
Nuotraukos: Norbert Tukaj
© 2026 visos teisės saugomos
Norėdami išsaugoti, prisijunkite.
Siekdami užtikrinti geriausią Jūsų naršymo patirtį, šiame portale naudojame slapukus.
Daugiau informacijos ir pasirinkimo galimybių rasite paspaudus mygtuką „Nustatymai“.
Jei ateityje norėsite pakeisti šį leidimą, tą galėsite bet kada galėsite padaryti paspaudžiant portalo apačioje esančią „Slapukų nustatymai“ nuorodą.
Tai portalo veikimui būtini slapukai, kurie yra įjungti visada. Šių slapukų naudojimą galima išjungti tik pakeitus naršyklės nuostatas.
| Pavadinimas | Aprašymas | Galiojimo laikas |
|---|---|---|
| storage_consent | Šiame slapuke išsaugoma informacija, kurias šiuose nustatymuose matomų slapukų grupes leidžiate naudoti. | 365 dienos |
| PHPSESSID | Sesijos identifikacinis numeris, reikalingas bazinių portalo funkcijų (pavyzdžiui, galimybei prisijungti, užildyti užklausos formą ir kitų) veikimo užtrikinimui. | Iki naršyklės uždarymo |
| REMEMBERME | Prisijungimui prie asmeninės paskyros portale naudojamas slapukas. | 1 mėnuo |
| OAID | Portalo vidinės reklaminių skydelių valdymo sistemos slapukas. | 1 metai |
| __eoi | Saugumo paskirtį atliekantis Google paslaugose (Google AdSense, AdSense for Search, Display & Video 360, Google Ad Manager, Google Ads) naudojamas slapukas. | 6 mėnesiai |
| sender_popup_shown_* | Naujienlaiškio užsakymo formos nustatymai. | 1 mėnuo |
Slapukai skirti informacijos apie portalo lankomumą rinkimui.
| Pavadinimas | Aprašymas | Galiojimo laikas |
|---|---|---|
| _ga | Google Analytics statistikos slapukas | 2 metai |
| _ga_* | Google Analytics statistikos slapukas | 2 metai |
Rinkodaros arba reklamos slapukai, kurie naudojami siekiant parodyti pasiūlymus ar kitą informaciją, kuri galėtų Jus sudominti.
| Pavadinimas | Aprašymas | Galiojimo laikas |
|---|---|---|
| test_cookie | Naudojamas Google paslaugose (Google AdSense, AdSense for Search, Display & Video 360, Google Ad Manager, Google Ads). | 15 minučių |
| __Secure-3PAPISID | Naudojama Google paslaugose vartotojo nustatymų ir informacijos saugojimui. | 13 mėnesių |
| __Secure-3PSID | Naudojama Google paslaugose vartotojo nustatymų ir informacijos saugojimui. | 13 mėnesių |
| _fbp | Facebook platformos slapukas. | 90 dienų |
| _fbc | Facebook platformos slapukas. | 90 dienų |
| datr | Facebook platformos slapukas. | 1 metai |